City Commission has paved the way for the replacement of the 37-year-old office complex, at 1150 Louisiana Ave., with a collection of modern, single-story buildings.
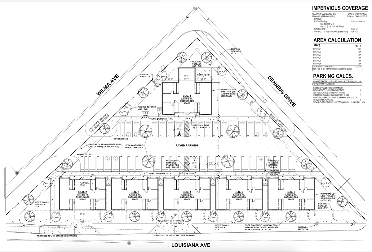
The proposal, submitted by Winter Park-based Z Properties, features six buildings surrounded by common parking and greenspace. A request to subdivide and replat the property was approved during the May 25 commission meeting.

According to the meeting agenda item, five buildings, each measuring approximately 1,836 square feet, will be constructed along the Louisiana Avenue side of the property. The sixth building, measuring 2,245 square feet, will be at the corner of Wilma Avenue and North Denning Drive.

A variance was also granted for on-site parking requirements with 42 spaces approved instead of the required 46 spaces. Six additional on-street parking spaces will be included in the construction plan.
The project has also received praise, in the form of 12 letters of approval, from residents and nearby businesses. The letters cite the age and condition of the current buildings, which date back to 1985, and the design concepts of the proposed project, as reasons to move forward with construction.
Representatives from Z Properties could not be reached for comment.

